Glijbaan frame douglas of grenen | model Boerderij Kuiken
Productinfo Glijbaan frame douglas of grenen | model Boerderij Kuiken
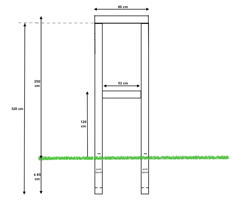
Glijbaan met enkele schommel Grenen/Douglas model Boerderij Kuiken
Specificaties:
Staanders en ligger: 14 x 14 cm
Hoogte: 249 cm (staanders gaan ± 85 cm de grond in)
Breedte ligger: 80 cm
Keuze uit 2 hout soorten:
14 x 14 cm, Noord-Europees grenen (onder hoge druk geïmpregneerd)
OF
14 x 14 cm, Douglas, onbehandeld geschaafd
Inclusief:
- Bevestigingsmateriaal met afdekdoppen
- Postsaver (al om de staanders bevestigd)
- Glijbaan 240 cm (kleur naar keuze)
- Ladder
De staanders moet (snel)beton worden gestort, dit wordt niet meegeleverd.
Andere afmetingen of model ? Vraag naar de mogelijkheden!
De breedte en hoogte kan worden aangepast
Kenmerken Glijbaan frame douglas of grenen | model Boerderij Kuiken
- Naturel 'Hout'
- 90 cm
- 120 cm
- 150 cm
